「築11年の大家族の2世帯住宅」自宅介護の不安を取り除く間取りにワザあり
目次
あなたにピッタリの間取りが分かる!
【2世帯住宅専用】セキホームの間取り診断はコチラから
みなさん、こんにちは。
富山の注文住宅メーカー セキホームです。
「セキホームのお家紹介」では新築のお家はもちろんのこと、住んで5年目・10年目のお家も訪問させていただき”セキホームの家がどんなところにこだわっているのか”また”お客様はどの様に住空間を楽しんで頂いているのか”を読者のみなさまに体験していただける内容をお届けします。
今回ご紹介させて頂くお家は「築11年の大家族の2世帯住宅」です。
セキホームが2007年に建築した大きな2世帯住宅に取材を行い、12年目を迎える今だからこそ語れる暮らしぶりを伺って来ました。
施工主様はどんな家族?
施工主様のプロフィール
今回取材させて頂いた施工主様は「お祖父様、お祖母様、お父様、お母様、お父様のお兄様、お子様が3人」の8人家族です。大家族の2世帯同居ですが、建築地の広さが200坪とおおきかったので8人でも広々使える空間を提案させて頂きました。
また、2世帯同居はお嫁に来ている若夫婦の奥様たってのご希望だったことも印象的でした。
子育てのサポートをしてほしかったことももちろんですが、お祖父様とお祖母様と一緒に暮らすことで、子どもたちご年配の方への理解や思いやりを学んでほしかったとのことです。素晴らしい考え方をお持ちの施工主様!
施工主様のお悩み
施工主様のお悩みポイントは大きく分けて2つありました。
①自宅介護に対応した設計
若夫婦の奥様は新しい家にする前に、メインで會祖父と會祖母の介護をしておられました。その経験から未来の事をしっかり見据えた、自宅介護に対応した設計をポイントに上げてくださいました。
②親・子・孫のプライベートを確保
3世代が同居する中で、それぞれのプライベートがをしっかりと守ることができるかも懸念点となっていました。
これら2つのお悩みをセキホームでは間取りの設計でカバーさせて頂きました。
それでは解決ポイントをご紹介します!
お悩み解決ポイント紹介
こちらの家は8人家族が住むだけあってとても大きな作りになっています。
また、完全2世帯とは異なりキッチンやお風呂などは共用で、親世帯の介護が必要になるまでは8人で団らんの生活を送る間取りとなっています。
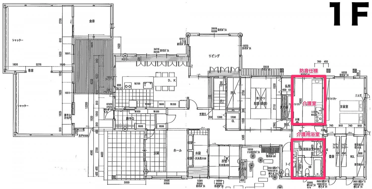
こちらが間取り図です。
それでは間取りに施された仕掛け・工夫をご紹介します。
ニオイと音をシャットアウトする介護室
介護に関して最も問題に上がるのがニオイと音の問題です。
実はニオイの問題も間取りと工夫で解決できます。
来客があった際にニオイが気にならないように、介護室は玄関から一番遠い場所に配置。
換気システムも介護ゾーンと他の部屋を分けることによってよりパワフルに動くよう設計されています。
お風呂、排泄の処理が楽なように、介護用浴室はお風呂とトイレがひとくくりのスペースになっています。
またヘルパーさんに介護を任せる時間は気持ちをリセットできるように介護室は防音仕様に。
また介護用バスを運びこむことを考慮し、介護室の入口は3枚引き戸になっています。
介護室だけでこれだけの工夫が施されています!
足腰を鍛える2階のお風呂
こちらは施工主様からのご提案だったのですが、家にいながらも足腰を使う場面を確保できるように、お風呂は2階に設置しています。
階段は一般的には45度が多いのですが、勾配を緩く30度に設計。手すりも配置し、幅も広くして人がすれ違えるだけの幅を確保しています!
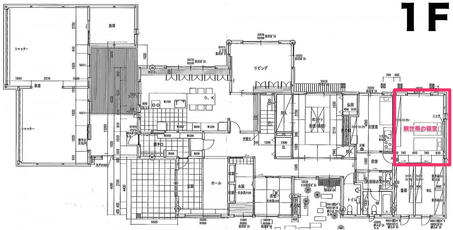
お互いの世帯の音が気にならない寝室
2世帯同居で気になる点でよく言わるのが「生活音」の問題です。2世帯住宅はプライベートなスペースを1階2階で分けるパターンが多いですが、そのスペースに重なりが出てしまうとどうしてもお互いが気を張ってしまいます。
1階の世帯は2階のちょっとした物音がついつい気になってしまう。
2階の世帯は物音を建てないように気を遣って落ち着けない。
こんな話を聞いたことがある方も多いのでは無いでしょうか?
そこでセキホームは2階と被らない1階のスペースに親世帯の寝室を配置することを提案しました。
この間取りにすることで、お互いが気を張ることがなく、ゆったりとしたプライベート空間でお過ごしいただけます。
それぞれの世代がお客様を招待できる3つの客間
2世帯で1つの客間を共有していると、お客様を招くタイミングが重なってしまい、ドコに案内すればいいかわからずあたふた、なんてことがありますよね。こちらのお家はその広い敷地を生かして親・子・孫それぞれの世代に客間が用意されています。
それぞれに客間を用意することで、それぞれが気兼ねなくお客様を招くことが出来ます。
自然とみんなが集まる家って素敵ですよね。
こちらが孫世代用のプレイルームです。
2階の子供部屋のすぐ横に配置されており、子どもたちが遊ぶスペースもコンパクトにまとまっています。
まとめ
今回は「築11年の大家族の2世帯住宅」をご紹介しました。
親世帯の介護が必要になった際にも困らない設備、世代ごとのプライベートはしっかりと守られた間取りは正にセキホームの実績と経験が詰まった家と言えます!
セキホームの2世帯住宅は「家族全員が笑顔で暮らせる家」を心がけています。
2世帯住宅で悩まれているお客様は是非一度セキホームまでご相談ください。
セキホームの経験と実績であなたの思いを形に変えます。
お電話・お問合わせはコチラより
あなたにピッタリの間取りが分かる!
【2世帯住宅専用】セキホームの間取り診断はコチラから
この記事を書いた人









