水回りの家事動線の考え方。おすすめ間取り5選を紹介。
目次
みなさん、こんにちは。 富山の注文住宅メーカー セキホームの片桐です。
注文住宅の間取りを決める際、特に重要な場所は水回り!と思われませんか?キッチンや浴室、洗濯などの水回りは日常生活の上で大きな割合を占めます。水回りの間取りは暮らしやすさに直結するので、自分たちの生活スタイルに合わせて配するのが理想的です。
特に料理、洗濯、お風呂などの水を使う水回りの家事は生活の上で避けて通れないもの。そのため水回りの家事動線の効率化は、間取りを作る際にはもっとも重要で外せない部分の一つです。
今回は水回りと家事動線の関係から設計された快適な間取りについて、セキホームの施工事例をもとにご紹介していきます。
水回りの家事動線
家族の食事を作ったり、風呂掃除をしたり、洗濯をしたりと忙しく家事をこなす中で、家事と家事の間で行き来する動線のことを家事動線と言います。家事動線が家の間取りに最適化されていると、毎日の家事の時間と体力の負担が少なく済みます。
今回は家事とライフスタイルのバランスを意識したセキホームの水回りの間取り事例をご紹介します。
【家事動線の詳細に関してはコチラをご覧ください。】
水回りの家事動線を考えた間取り
水回りの家事動線を考えた間取りについて、セキホームの施工事例を5件ご紹介します。
水回りを回遊する間取り
こちらのお宅は水回りの家事動線を回遊できる間取りにしました。キッチン、洗濯室、干し場、トイレの間は行き止まりなしで移動できます。
水を使う調理、洗濯、トイレ掃除など別の種類の作業でも、同時進行でおこなう必要があります。例えば、洗濯機をまわしている間に料理したり、料理の合間にお風呂掃除をすることもあるでしょう。
それぞれの家事を快適におこなうためには、それぞれの距離が近い間取りが重要です。回遊性のある間取り家事動線は、移動歩数を減らし、家事のストレスを軽減してくれます。
脱衣室を大きくとった間取り
こちらのお宅も水回りの家事動線を回遊できる間取りにしました。先程の間取りとの違いは「洗濯の動線に重点を置いた点」です。
「洗う、干す、取り込む、たたむ、しまう」という一連の動作に無駄をなくすのが、洗濯を時短するための一番の早道です。動線の距離が長く不便だと、それだけ労力がかかります。
こちらのお宅では脱衣室のスペースを大きくし、洗濯の一連の動作を一貫しておこなえるようにしました。脱衣室で脱いだ服は洗濯機に。洗濯機で洗った後は同じ部屋で干し、干した服は脱衣室の棚にしまえるようにしました。
また、脱衣室と一緒にしがちな洗面スペースはあえて別室に。家族が同じタイミングで脱衣室と洗面スペースを使うことができます。
洗濯のストレスフリーな間取り
こちらのお宅も洗濯に重点を置いた水回りの間取りです。
ユーティリティ兼ウォークインクローゼットは洗濯機が置ける広さに設計。この部屋で洗濯物を洗って、干して、たたんで、しまえるようになりました。
ウォークインクローゼットは、家族全員分の衣類を一カ所にまとめることができるため、家族ごとに仕分ける手間がなくなります。ハンガーで乾かした衣類をそのままかけられるので、たたむ作業が減るというメリットもあります。
また、キッチンから洗濯室が近い距離にあるのもポイント。料理の合間時間に洗濯物を回したり、必要になったタオル類もすぐにとりに行けます。さらに洗面コーナーと脱衣所も近いので、脱いだ衣服はすぐに洗濯機へ。家族の家事協力も得やすい間取りです。
帰宅したらお風呂場に直行できる間取り
こちらのお宅は家族用玄関の勝手口から洗面コーナー、トイレ、洗濯脱衣室、お風呂まで一直線の間取りにしました。
例えば、お子さんの帰宅後にウォークインクローゼットでコートを脱ぎ、洗面コーナーで手を洗います。その後、リビングを通らずに洗濯脱衣室で汚れた服を脱ぎ、お風呂に直行。子供が汚れて帰ってきても笑顔で出迎えられます。
また、洗濯脱衣室を広く設計したため服を脱いだ後、洗濯し、干した後クローゼットにしまえます。一つの部屋で洗濯の一連の動きが完結します。子育て世代にピッタリな間取りとなっています。
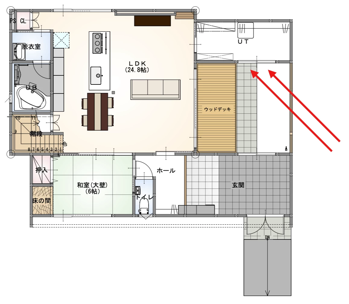
快適な部屋干しをした間取り
こちらのお宅はキッチン、脱衣室、お風呂などの水回りを近くに設置しながら部屋干しスペースとなるユーティリティはあえて離した間取りにしました。
間取りを考える際は水回りの動線だけでなく日当たりを考えることも重要です。日があたらない場所で洗濯物を干すと生乾きになり、臭いや雑菌の原因になります。日の光が届く場所を部屋干しスペースにすれば、早く乾いて部屋干し特有の臭いも防げます。
今や水回りの家事動線を考えた間取りはマストになってきていますが、施主様の立地条件や住んだ後のことを想定した間取りを考えることも大切です。
セキホームは間取りの常識にとらわれず、施主様に寄り添って提案します。
まとめ
家事の動線を考慮した間取りは今やごく一般的です。ただ、家事動線にとらわれすぎると暮らしてから違和感を感じることがあるかもしれません。
暮らす上で重要なのは効率の良さと快適さの両立。どちらが欠けてもせっかく新築するのにもったいないですよね。
セキホームではお客様のライフスタイルと理想の暮らしをヒアリングし、その中で快適な暮らしに繋がるようアドバイスをさせていただいています。
家事動線に関するご質問はもちろんのこと、注文住宅の図面作成・見積もりも無料。お客様一人ひとりが理想的なマイホームを手に入れられるよう最大限の工夫を凝らして間取り図を制作しています!ぜひお気軽にご相談ください。
補助金チェックシートはコチラからダウンロード!
今回はこの記事を読んでくださった皆さんに富山県で使える助成金をまとめた「富山の助成金チェックシート」をプレゼント!
この記事を書いた人









